Culpeper, VA 22701
ph: 540-825-5591
mlarchit
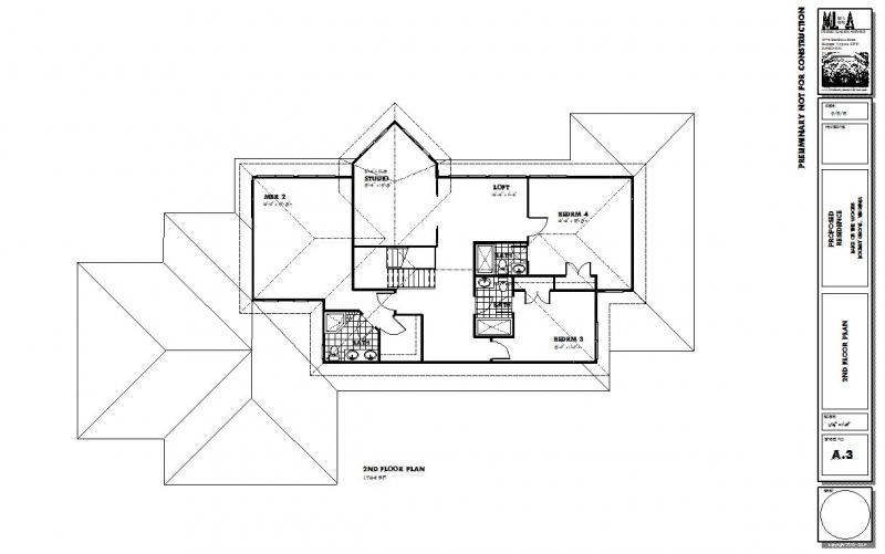
Proposal for a 4-Unit Faculty Residence
To be located along the main lawn, the building was designed to fit in with the scale and traditional design of the neighboring residences.
Waterfront Residence
Design proposal for new home to replace existing cottage on a prime waterfront lot. The house will take advantage of multiple viewing angles while preserving most of the existing mature trees.
Construction has begun on this custom home combing a recycled historic log home with new construction to create an informal country home. The design uses an assemblage of differing 'period' additions to mimic the multi-generational farmsteads found throughtout the county.
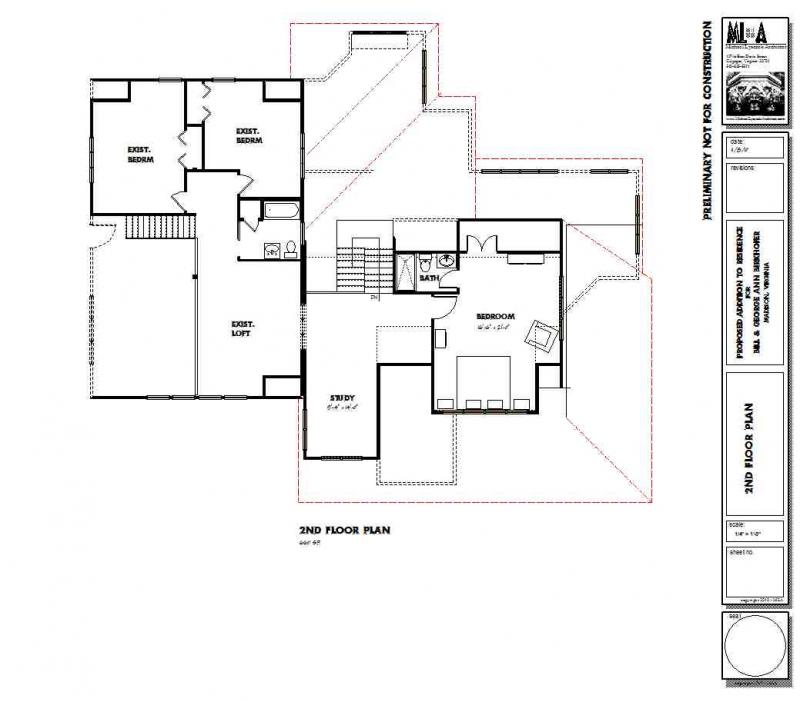
The owners of this 1990's log home wish to expand the main floor to provide more living & entertainment area, and to remodel the master suite to incorporate universal design features for wheel chair accessibility.
The 2nd floor provides an additional bedroom and a study, both of which enjoy a spectacular view of the Blue Ridge Mountains.
The addition and original log structure will incorporate a pre-finished standing seam metal roof with a rustic shingle and board-and-batten exterior. The use of native stone, Hardie-Panel & Hardie-Shingle products will provide maintenance-free living.
Culpeper, VA 22701
ph: 540-825-5591
mlarchit